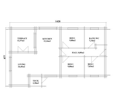
Elumaja Luise 114


114m2 ühekordne elamu, mille puitosa on projekteeritud ja toodetud kliendi soove arvestades. Nägus 3 magamistoaga palkmaja ehitati Vahemere äärde meie partneri kaasabil.